Inspection Procedure 3: the ABS Warning Light Remains Illuminated After the Engine Is Started
INSPECTION PROCEDURE 3: The ABS Warning Light Remains Illuminated after the Engine is Started.NOTE: This diagnosis procedure is limited to cases where communication with the scan tool is possible (ABS-ECU power supply its normal) and no diagnostic trouble code outputs.


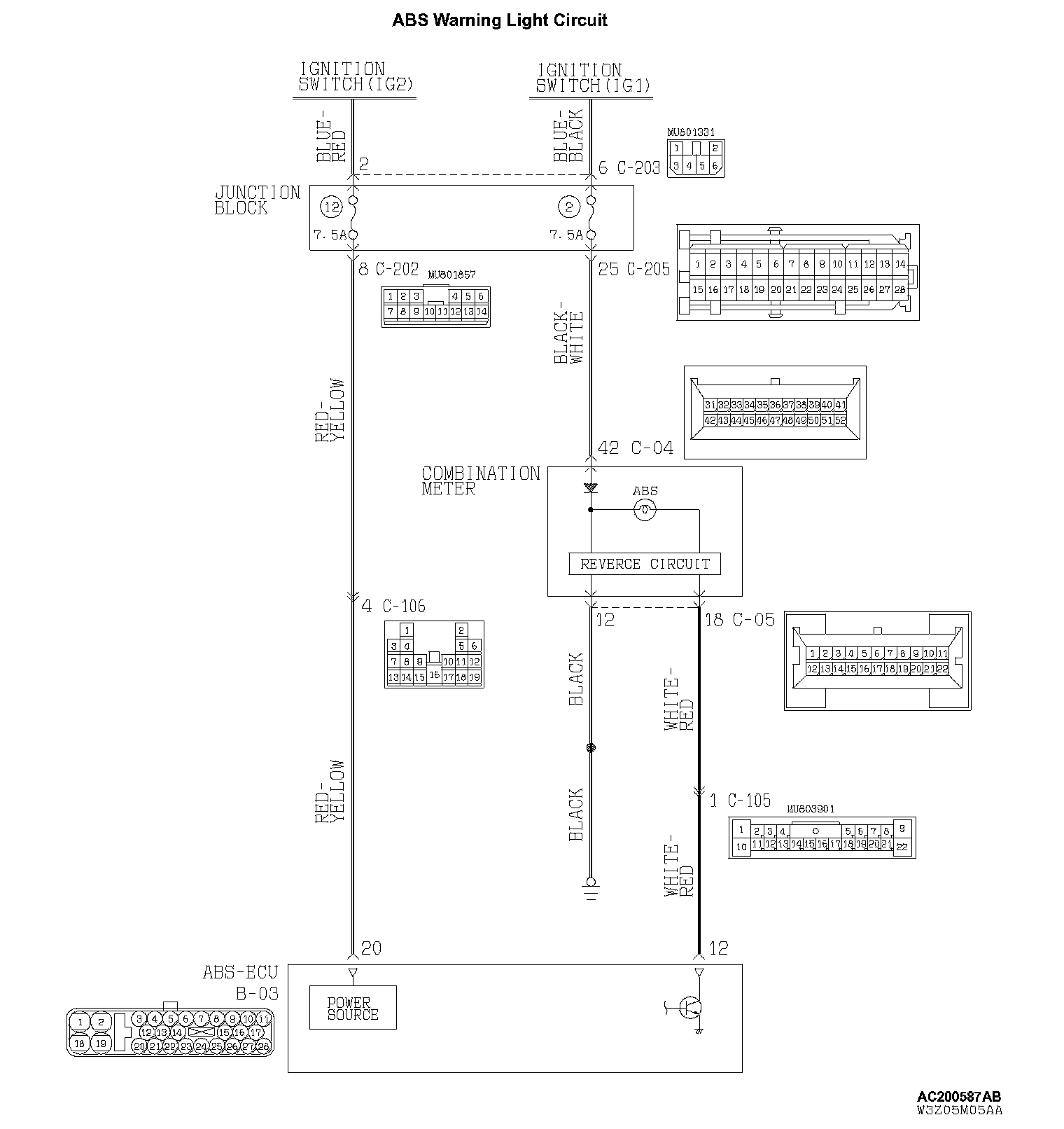
CIRCUIT OPERATION
^ The ABS warning light is lit up by transistor control in the ABS-ECU. However, the relationship of the reverse circuit movement in the combination meter will vary from usual in terms of transistor ON/OFF and ABS warning light ON/OFF, in that the ABS warning light will light up when the transistor is turned OFF for this circuit. This is how the ABS warning light lights up even when the ABS-ECU connector is connected improperly or if the ABS-ECU function has terminated.
^ The ABS-ECU also lights up the ABS warning light during the initial check (approximately 3 seconds) when the ignition switch is turned ON in addition to when the system is malfunctioning.
TECHNICAL DESCRIPTION (COMMENT)
Possible causes include the combination meter power circuit, disconnected ground circuit, dead light bulb, or short circuited ABS warning light.
TROUBLESHOOTING HINTS (THE MOST LIKELY CAUSES FOR THIS CONDITION:)
^ Damaged wiring harness or connector
^ Malfunction of the hydraulic unit (integrated with ABS-ECU)
^ Malfunction of the combination meter
DIAGNOSIS
Required Special Tool:
^ MB991223: Harness Set
STEP 1. Check the ABS warning light circuit at ABS-ECU connector B-03.

1. Disconnect ABS-ECU connector B-03.
2. Connect ABS-ECU connector B-03 terminal number 12 to ground.
3. Turn the ignition switch to the ON position.
Q: Does the ABS warning light go off?
YES: Retest the system. If the malfunction persists, replace the hydraulic unit (integrated with ABS-ECU). Then go to Step 3. If the malfunction is not reproduced, an intermittent malfunction is suspected.
NO: Go to Step 2.
STEP 2. Check the harness wire between the combination meter connector C-05 terminal 18 and ABS-ECU connector B-03 terminal 12.
NOTE: After inspecting combination meter connector C- 105, inspect the wire. If combination meter connector C-105 is damaged, repair or replace it. If the connector has been repaired or replaced, go to Step 3.


Q: Is the harness wire between combination meter connector C-05 terminal 18 and ABS-ECU connector B-03 terminal 12 damaged?
YES: Replace the combination meter (printed circuit board) and then go to Step 3.
NO: Repair the harness wire and then go to Step 3.
STEP 3. Retest the system.
Q: Does the ABS warning light turn off in 3 seconds after start-up?
YES: The procedure is complete.
NO: Return to Step 1.