Inspection Procedure 1
INSPECTION PROCEDURE 1: Communication with Scan Tool MB991958 is not possible.Immobilizer - ECU Power Supply,Ground And Powertrain Control Module communication Line Circuit Part 1:

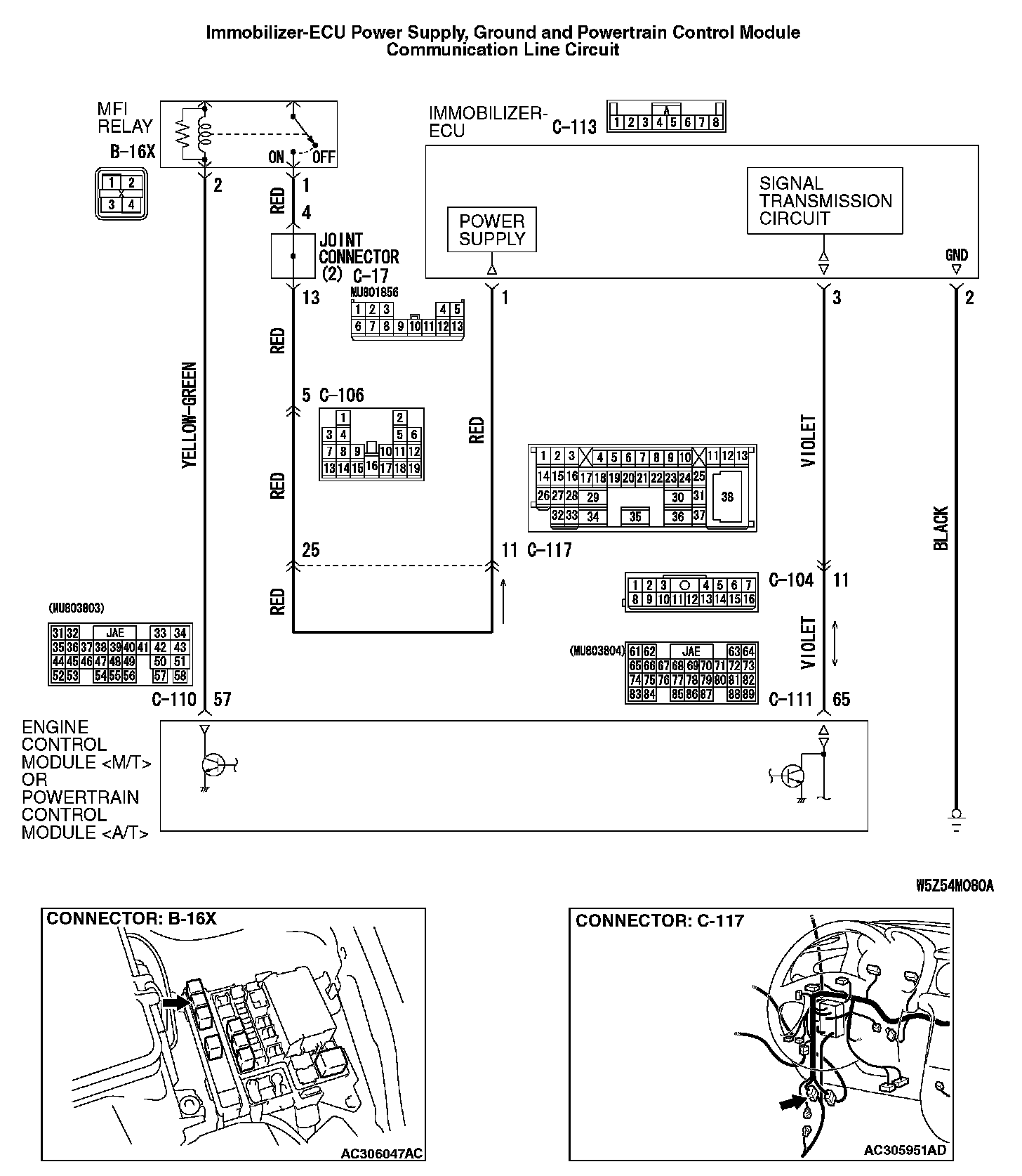
Immobilizer - ECU Power Supply,Ground And Powertrain Control Module communication Line Circuit Part 2:

CIRCUIT OPERATION
The Immobilizer-ECU is energized by the MFI relay when the ignition switch is turned "ON". The ECM
TECHNICAL DESCRIPTION (COMMENT)
- This malfunction may be caused by a defective immobilizer-ECU, ECM
- If the MFI system is normal, the MFI relay can be determined as normal. In addition, if the MFI system and scan tool MB991958 can communicate each other, the circuits between the data link connector and the ECM
NOTE: If this malfunction appears, MFI system DTC P0513 will be output.
TROUBLESHOOTING HINTS
- Malfunction of the immobilizer-ECU.
- Malfunction of the ECM
- The wiring harness or connectors may have loose, corroded, or damaged terminals, or terminals pushed back in the connector.
DIAGNOSIS PROCEDURE
Required Special Tools:
- MB991223: Harness Set
- MB991958: Scan Tool (MUT-III Sub Assembly)
- MB991824: Vehicles Communication Interface (V.C.I.)
- MB991827: MUT-III USB Cable
- MB991910: Main Harness A

STEP 1. Check if scan tool MB991958 can communicate with the MFI system and if an MFI system DTC other than P0513 is set.
Q: Can scan tool MB991958 communicate with the MFI system? Is an MFI system DTC other than P0513 set?
YES: Go to Step 2.
NO: Refer to Multiport Fuel Injection Diagnosis.
STEP 2. Check the immobilizer-ECU power supply circuit by backprobing.

1. Do not disconnect immobilizer-ECU connector C-113.
2. Turn the ignition switch to the "ON" position.

3. Measure the voltage between terminal 1 and ground by backprobing.
- The voltage should measure approximately 12 volts (battery positive voltage).
Q: Is the measured voltage approximately 12 volts (battery positive voltage)?
YES: Go to Step 5.
NO: Go to Step 3.


STEP 3. Check immobilizer-ECU connector C-113 and MFI relay connector B-16X for loose, corroded or damaged terminals, or terminals pushed back in the connector.
Q: Are immobilizer-ECU connector C-113 and MFI relay connector B-16X in good condition?
YES: Go to Step 4.
NO: Repair or replace the component(s). Confirm that scan tool MB991958 communicates normally.




STEP 4. Check the harness wires between immobilizer-ECU connector C-113 (terminal 1) and MFI relay connector B-16X (terminal 1).
NOTE: Also check intermediate connector C-117, C-106 and joint connector C-17,check the wires. If intermediate connector C-117, C-106 and joint connector C-17 are damaged, repair or replace them.
Q: Are the harness wires between immobilizer-ECU connector C-113 (terminal 1) and MFI relay connector B-16X (terminal 1) in good condition?
YES: There is no action to be taken.
NO: Repair the component(s). Confirm that scan tool MB991958 communicates normally.
STEP 5. Measure the resistance at immobilizer-ECU connector C-113.

1. Do not disconnect immobilizer-ECU connector C-113.

2. Measure the resistance between terminal 2 and ground.
Q: Is the resistance less than 2 ohms?
YES: Go to Step 8.
NO: Go to Step 6.

STEP 6. Check immobilizer-ECU connector C-113 for loose, corroded or damaged terminals, or terminals pushed back in the connector.
Q: Is immobilizer-ECU connector C-113 in good condition?
YES: Go to Step 7.
NO: Repair or replace the damaged component(s). Confirm that scan tool MB991958 communicates normally.

STEP 7. Check the harness wires between immobilizer-ECU connector C-113 (terminal 2) and ground.
Q: Is the harness wire between immobilizer-ECU connector C-113 (terminal 2) and ground in good condition?
YES: There is no action to be taken.
NO: Repair the harness wire. Confirm that scan tool MB991958 communicates normally.

STEP 8. Check immobilizer-ECU connector C-113 and ECM
Q: Is immobilizer-ECU connector C-113 and ECM
YES: Go to Step 9.
NO: Repair or replace the damaged component(s). Confirm that scan tool MB991958 communicates normally.

STEP 9. Check the harness wires between immobilizer-ECU connector C-113 and ECM
NOTE: Also check intermediate connector C-104,check the wires. If intermediate connector C-104 are damaged, repair or replace them.
Q: Are the harness wires between immobilizer-ECU connector C-113 and PCM connector C-111 in good condition?
YES: Go to Step 10.
NO: Repair the harness wire. Confirm that scan tool MB991958 communicates normally.
STEP 10. Replace the immobilizer-ECU, ECM
Replace the immobilizer-ECU, ECM
Q: Did the communication with the scan tool become possible after replacing the immobilizer-ECU, the ECM
YES: Register the password (secret code) and encrypted code P.54A-34. Confirm that scan tool MB991958 communicates normally
NO: Go to Step 11.
STEP 11. Recheck for malfunction.
Q: Is a malfunction eliminated?
YES: The procedure is complete (If no malfunction are found in all steps, an intermittent malfunction is suspected. Refer to How to Use Troubleshooting/Inspection Service Points- How to Cope with Intermittent Malfunction).
NO: Replace the immobilizer-ECU or ECM